ИК-выключатель SR-IRIS-IRH (12-24V, 1x5A, 40x11mm) (Arlight, Открытый) 029110 в Нижнем Новгороде
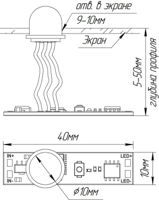
Пассивный ИК-выключатель SR-IRIS-IRH (12-24V, 1x5A, 40x11mm) предназначен для управления одноцветными светодиодными лентами, напряжением 12/24 В и мощностью до 60/120 Вт. Благодаря микро размерам платы 40*11*12 мм выключатель устанавливается в алюминиевый профиль с внутренней высотой от 5 до 50 мм под пластиковым экраном (требуется вырез в экране профиля для работы датчика), что делает его практически незаметным, позволяя легко и быстро управлять освещением. Реагирует на движение. При улавливании движения - плавное включение света, при пропадании движения – выключение света через 2 мин. Зона срабатывания 1,5-2 м. Применяется только внутри помещений, поскольку плата открыта и не имеет корпуса. Отличное решение по управлению освещением небольших светильников, применяемых для подсветки в шкафах, стеллажах и др. местах.
Пассивный ИК-выключатель, встраиваемый в профиль, реагирует на движение. При улавливании движения - плавное включение и выключение света. При пропадании движения - отключение света через ~2мин. Зона срабатывания 1,5-2м. Требуется вырез в экране профиля для работы датчика. Длина кабеля 60мм. Для профилей с внутренней высотой (пов. профиля - пов. экрана) от 5 до 50 мм. 12-24V, 5A. Размер платы 40x11x12 мм, размер датчика: D12х10 мм.
029110 Arlight Выключатель Встраиваемый в Нижнем Новгороде
Вы можете заказать Выключатель Arlight с доставкой или самовывозом в Нижнем Новгороде
просто достаточно позвонить менеджеру и сообщить артикул товара: 029110 или оформить заказ на сайте Arlight Shop Нижний Новгород
Инструкции и файлы
Характеристики
|
Объем м3
|
0.000009 |
|
Гарантия м.
|
12 |
|
Класс пылевлагозащиты
|
IP20 |
|
Способ монтажа
|
Встраиваемый |
|
Тип товара
|
Выключатель |
|
Тип сенсора
|
PIR сенсор |
|
Модельный ряд
|
IRIS |
|
Максимальная дальность срабатывания
|
min: 1.5 м; max: 2 м |
|
Угол обзора
|
120 ° |
|
Выходная мощность
|
typ: 60 W, typ: 120 W |
|
Макс. постоянный прямой ток
|
5 A |
|
Напряжение питания
|
12 V, 24 V |
|
Ток нагрузки
|
typ: 5 A |
|
Каналы управления
|
1 CH (1 канал - Mono) |
|
Связь пульт/контроллер
|
Проводной |
|
Выходной сигнал
|
Вкл/выкл DC (3.3-48V) |
|
Входной сигнал
|
PIR (пассивный ИК) |
|
Тип управления
|
Встроенный переключатель |
|
Длина
|
40 мм |
|
Ширина
|
11 мм |
|
Высота
|
12 мм |
|
Напряжение (прайс)
|
24 В |
|
Мощность (прайс)
|
120 Вт |
|
Класс управления (прайс)
|
Вкл/Выкл |





